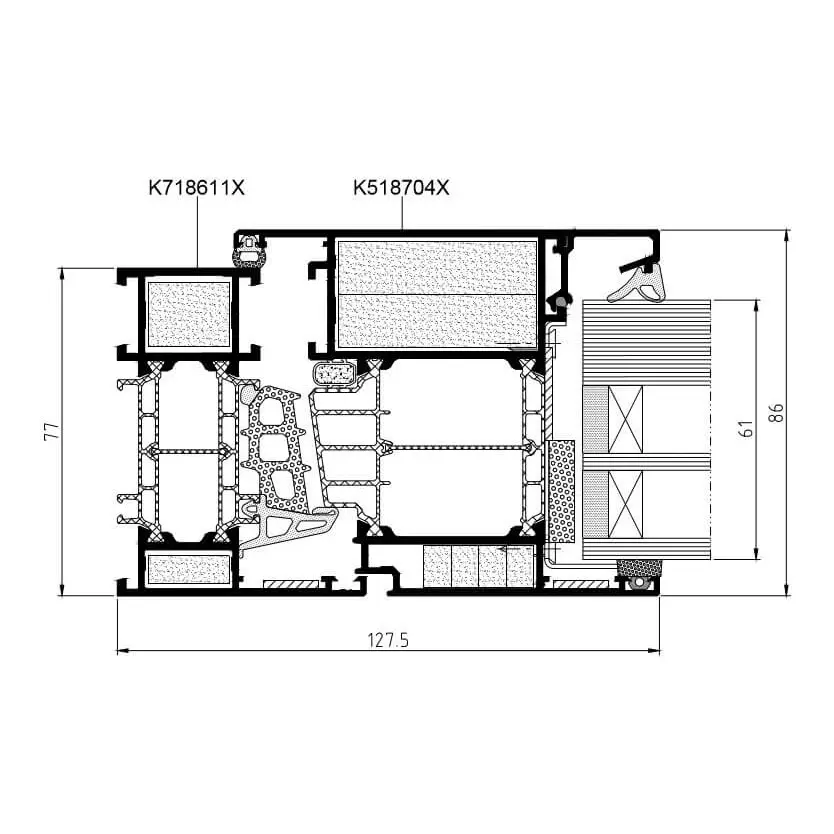
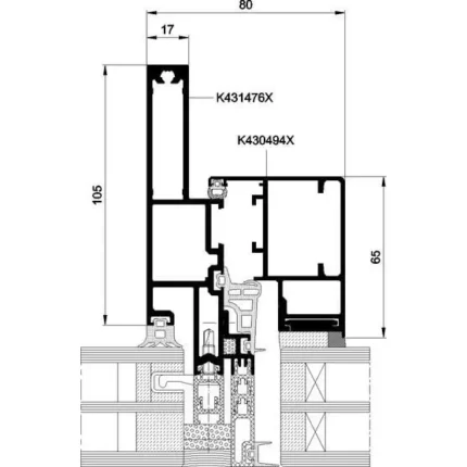
System przeciwpożarowych okien, drzwi i ścianek z izolacją termiczną MB-86 EI służy do wykonywania zewnętrznych przegród przeciwpożarowych wyposażonych w okna otwierane, drzwi i ścianki stałe o głównych klasach odporności ogniowej EI30, EW30, EI15 według normy PN-EN 13501-2. Konstrukcja bazuje na systemie MB-86N, dzięki czemu cechuje ją wysoka izolacyjność termiczna i akustyczna oraz szczelność na wodę i powietrze.
System MB-86 EI łączy w sobie zatem zalety klasycznego systemu okienno-drzwiowego z właściwościami przegród ognioodpornych w zakresie parametów termicznych, użytkowych wytrzymałościowych oraz technologii produkcji. Wykonana w nim zabudowa spełnia wszelkie wymagania obowiązujących przepisów i norm szczególnie dotyczących oszczędzania energii i ochrony środowiska, zapewniając przy tym odpowiednie bezpieczeństwo pożarowe. System jest sklasyfikowany jako nierozprzestrzeniający ognia (NRO).
Zalety systemu MB-86 EI:
- Profile o trzykomorowej budowie, gdzie centralną część stanowi komora izolacyjna pomiędzy przekładkami termicznymi o szerokości 43 lub 42 mm,
- Elementy izolacji ogniowej w komorach wewnętrznych kształtownikow aluminiowych oraz specjalne akcesoria i materiały funkcjonujące w przestrzeni pomiędzy kształtownikami aluminiowymi a szkłem,
- W drzwiach klasy EI2 nie jest wymagane stosowanie elementów izolacji ogniowej w komorach wewnętrznych kształtowników aluminiowych, co wpływa na szybszą prefabrykację i niższą cenę konstrukcji. W zabudowie witrynowej wkłady są wymagane w profilach futryn i poprzeczek.
- Szeroki zakres grubości możliwych do zastosowania szyb pozwala na stosowanie rożnych rodzajów szkła zespolonego, w tym zestawów dwukomorowych,
- Okucia stosowane w oknach MB-86 EI standardowo są w klasie antywłamaniowej RC2.
Czas dostawy i montażu
Termin realizacji uzależniony jest od rodzaju produktu i producenta.
W przypadku produktów dostępnych od ręki dostawa zwykle trwa od 5 do 14 dni roboczych.
Produkty wykonywane na zamówienie (np. ogrodzenia, bramy, stolarka) mają dłuższy czas oczekiwania – każdorazowo potwierdzany indywidualnie.
Jeśli zamawiasz z montażem – skontaktujemy się z Tobą, aby umówić dogodny termin. Montujemy solidnie i bez opóźnień.
Zadzwoń i porozmawiajmy o możliwym terminie montażu - 574 839 237
![256.1_MB-86EI[2]30_Drzwi_O_wizualizacja_logo_glowna Okna, drzwi i ścianki przeciwpożarowe klasy EI15, EW30, EI30 MB-86 EI ALUPROF - obrazek 1](https://ravko.pl/wp-content/uploads/2025/09/256.1_MB-86EI230_Drzwi_O_wizualizacja_logo_glowna.webp)