System fasadowy kompatybilny z żaluzjami SkyFlow MB-SR50N ZS ALUPROF

Opis

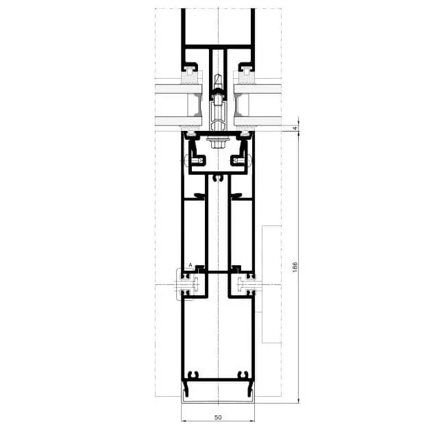
System MB-SR50N ZS to innowacyjne rozwiązanie łączące żaluzję fasadową SkyFlow z systemem fasady słupowo-ryglowej firmy Aluprof – MB-SR50N. Powstało ono przede wszystkim z myślą o realizacjach obiektowych, gdzie szczególną rolę odgrywa pełna harmonia pomiędzy aspektami technicznymi i estetycznymi.

Mając na uwadze te względy, dla słupów fasady zaprojektowano specjalne listwy dociskowe, umożliwiające montaż wypełnienia fasady oraz listwy maskujące, które jednocześnie pełnią funkcję prowadnicy dla żaluzji fasadowej. Dzięki temu decyzję o montażu tego typu osłony można podjąć na późniejszym etapie realizacji inwestycji, gdy w obiekcie jest już zainstalowana fasada. Cały mechanizm osłony przeciwsłonecznej został dyskretnie ukryty za estetyczną kasetą wykonaną z ekstrudowanego aluminium. Produkt dostępny jest również z prowadnicą aluminiową oraz linkową. Maksymalne wymiary żaluzji to 4 m wysokości i 4,5 m szerokości.

FUNKCJONALNOŚĆ I ESTETYKA:

  • dostępne dwa rodzaje pinów (sworzni): stalowy (trwały i wytrzymały) oraz PVC (minimalizuje hałas mogący powstać podczas wiatru)
  • lamele żaluzji wykonane są z profilowanego aluminium i dostępne w dwóch kształtach: C i Z. Te pierwsze zostały obustronnie wywinięte do wewnątrz, co gwarantuje sztywność i odporność na oddziaływanie wiatru. Ponadto mają one możliwość obrotu w zakresie 0 do 180st. Z kolei lamele w kształcie litery Z, dzięki swojej budowie zapewniają pełniejsze zaciemnienie i dodatkowo zostały wyposażone w specjalną uszczelkę wygłuszającą. Ich zakres obrotu może się odbywać w przedziale 0-90st
  • prowadnice jako jedyne na rynku zostały wyposażone w specjalne uszczelki wygłuszające, które niwelują hałas powstający podczas uderzenia lameli o prowadnice
  • elementy tekstylne żaluzji (drabinki i tasiemki) wykonane są z poliestru i utrwalane termiczne, dzięki czemu są odporne na działanie czynników atmosferycznych, rozciąganie, przecieranie, a także oddziaływanie promieni UV czy pojawianie się pleśni
  • drabinka sznurków podczas zwijania układa się w cyfrę 8 dzięki czemu nie wplątują się one pomiędzy lamele, co zapewnia ich płynne zwijanie
  • słupy fasady posiadają specjalne listwy dociskowe, umożliwiające montaż wypełnienia oraz listwy maskujące, które jednocześnie pełnią funkcję prowadnic dla żaluzji
Czas dostawy i montażu

Czas dostawy i montażu

Termin realizacji uzależniony jest od rodzaju produktu i producenta.
W przypadku produktów dostępnych od ręki dostawa zwykle trwa od 5 do 14 dni roboczych.
Produkty wykonywane na zamówienie (np. ogrodzenia, bramy, stolarka) mają dłuższy czas oczekiwania – każdorazowo potwierdzany indywidualnie.

Jeśli zamawiasz z montażem – skontaktujemy się z Tobą, aby umówić dogodny termin. Montujemy solidnie i bez opóźnień.

Zadzwoń i porozmawiajmy o możliwym terminie montażu - 574 839 237